
Plattegrond van het complex
Er zijn zeven woningen, waarvan één op de begane grond en twee per etage (3).
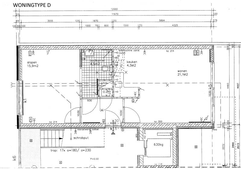
- De woning op de begane grond en de drie woningen daarboven worden op de tekeningen hierna, type D genoemd
- De drie woningen daarnaast worden op de tekeningen type E genoemd
- Naast de woning op de begane grond, de lift en de e-kasten is de stalling voor scootmobielen en de kitchenette
- Achter de woning is de tuin met een gezellig zitje en zijn de bergingen (7) te vinden
Plattegrond met maten van woningtype D
Plattegrond met maten van woningtype E